На сайте представлена информация о стоимости дома под усадку, который предлагается без отделочных работ. Если вам нужна точная стоимость дома под ключ, вам следует уточнить это у менеджера. Менеджер предоставит вам полную информацию о стоимости дома с учетом всех отделочных работ и других необходимых услуг.

Проект ДК-24

0
Размер
Размер:
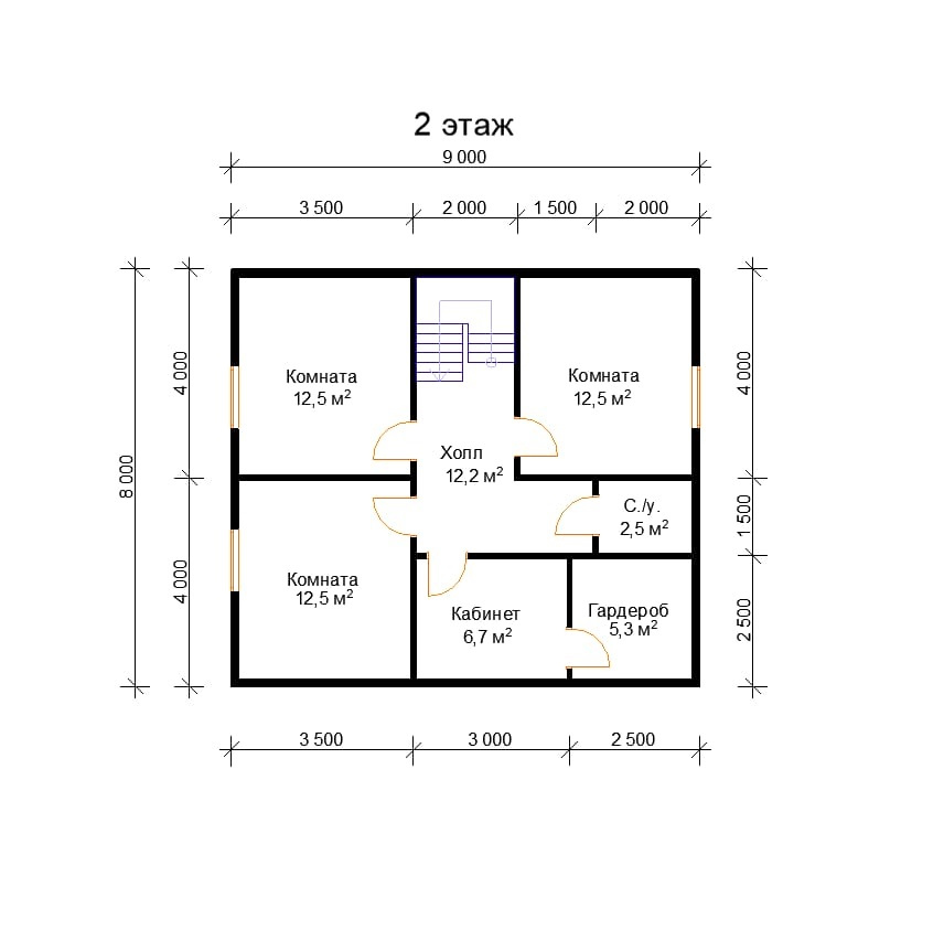
8х9
Площадь
Площадь:
140 м²
Этажность
Этажность:
1,5 этажа

Комплектация: р.


По запросу
Получить предложение со скидкой
Хотите внести изменения в проект?
Вы можете внести любые изменения в проект дома.
Сделаем расчет в течение одного дня.
Комплектация
Фундамент
Кровля
«Комфорт» Дачный вариант дома

Дом для комфортного проживания в период весна-осень

  • Профилированный брус 140х140 мм камерной сушки, собранный на пружинный узел делают дом прочным и долговечным
  • Фундамент жб сваи с двойной обвязкой
  • Кровельное покрытие металлочерепица толщиной 0.5 мм
  • Теплый контур дома 150 мм с ПВХ окнами с двойным стеклопакетом (3 стекла) позволяют создать комфортную температуру в период весна-осень
  •   Высота 1-го этажа — 2,6 м (± 0.05 м. в чистоте)
  •   Высота 2-го этажа — 2,45 м (± 0.05 м. в чистоте)
  •   Двойная обвязка – Брус классический 150х150
  •   Наружные стены дома - Брус профилированный 140х140 мм
  •   Внутренние перегородки - Брус профилированный 90х140 мм, 140х140 мм
  •   Выносы крыши – 500-600 мм
  •   Балки пола и перекрытий — Брус 100х150 мм (на ребро, шаг 580 мм)
  •   Стропильная система — Брус 50х150 мм (шаг 580 мм)
  •   Кровельная мембрана
  •   Вентиляционный зазор кровли – Брусок 50х50 мм
  •   Обрешетка крыши — Доска обрезная 22х150 мм (шаг 200 мм)
  •   Кровельное покрытие – Металлочерепица 0.5 мм
  •   Черновой пол 1го этажа - Доска обрезная 22х100мм
  •   Все соединения бруса (угловые, торцевые, внутренние перегородки) - теплый угол «ласточкин хвост»
  •   Соединение венцов дома пружинный узел, нагель берёзовый
  •   Утепление между венцами – льноджутовое волокно 4-6мм
  •   Утепление пола 1го этажа - 150 мм минеральная вата
  •   Утепление межэтажного перекрытия - 150мм минеральная вата
  •   Утепление мансардного этажа – 150 мм минеральная вата
  •   Устройство чистового пола - Доска сухая Шпунт 35 мм
  •   Обсада дверных и оконных проемов
  •   Установка Входной двери - Металлическая с утеплителем и терморазрывом
  •   Установка межкомнатных дверей - Филенчатые без фурнитуры
  •   Установка окон – Профиль пвх двухкамерный стеклопакет, подоконник, отлив, москитная сетка
  •   Отделка мансарды, потолки, каркасные перегородки – Имитация бруса 16х135 мм
  •   Подшив выносов крыши – Софит частично перфорированный
  •   Лестница – Деревянная с перилами и балясами, ступени открытые
  •   Устройство крыльца и террасы – Пол лиственница, потолок имитация бруса 16 мм, перила, лестница для подъёма с земли
  •   Плинтус пол потолок – деревянный 55 мм
  •   Обналичка дверных и оконных проёмов – 90 мм деревянная
  •   Гидроизоляция закладного венца дома – Гидроизол
  •   Обработка закладного венца дома, обвязочного венца, половых лаг – антисептик (огне-био)
  •   Уборка строительного мусора на участке (без вывоза с участка)
  •   Расходные материалы
  •   Доставка разгрузка и сборка комплекта дома на участке заказчика
  •   Фундамент ЖБ забивные сваи
  •   Сечение сваи – 150х150 мм
  •   Высота сваи – 3 м
  •   Минимальная высота цоколя – 500 мм
  •   Оголовок сваи – металлический оголовок 250х250мм
  •  
«Зима»

Тёплый дом для постоянного круглогодичного проживания

  • Профилированный брус 140х190 мм камерной сушки, собранный на пружинный узел делают дом прочным и долговечным
  • Фундамент жб сваи с двойной обвязкой
  • Кровельное покрытие металлочерепица толщиной 0.5 мм
  • Теплый контур дома 200 мм с ПВХ окнами с двойным стеклопакетом (3 стекла) позволяют создать комфортную температуру в доме в любое время года
  •   Высота 1-го этажа — 2,6 м (± 0.05 м. в чистоте)
  •   Высота 2-го этажа — 2,45 м (± 0.05 м. в чистоте)
  •   Двойная обвязка – Брус классический 150х200 мм, 200х200 мм
  •   Наружные стены дома - Брус профилированный 140х190 мм
  •   Внутренние перегородки - Брус профилированный 90х140 мм, 140х140 мм
  •   Выносы крыши – 500-600 мм
  •   Балки пола и перекрытий — Брус 100х200 мм (на ребро, шаг 580 мм)
  •   Стропильная система — Брус 50х200 мм (шаг 580 мм)
  •   Кровельная мембрана
  •   Вентиляционный зазор кровли – Брусок 50х50 мм
  •   Обрешетка крыши — Доска обрезная 22х150 мм (шаг 200 мм)
  •   Кровельное покрытие – Металлочерепица 0.5 мм
  •   Черновой пол 1го этажа - Доска обрезная 22х100мм
  •   Все соединения бруса (угловые, торцевые, внутренние перегородки) - теплый угол «ласточкин хвост»
  •   Соединение венцов дома пружинный узел, нагель берёзовый
  •   Утепление между венцами – льноджутовое волокно 4-6мм
  •   Утепление пола 1го этажа - 200 мм минеральная вата
  •   Утепление межэтажного перекрытия - 150мм минеральная вата
  •   Утепление мансардного этажа – 200 мм минеральная вата
  •   Устройство чистового пола - Доска сухая Шпунт 35 мм
  •   Обсада дверных и оконных проемов
  •   Установка Входной двери - Металлическая с утеплителем и терморазрывом
  •   Установка межкомнатных дверей - Филенчатые без фурнитуры
  •   Установка окон – Профиль пвх двухкамерный стеклопакет, подоконник, отлив, москитная сетка
  •   Отделка мансарды, потолки, каркасные перегородки – Имитация бруса 16х135 мм
  •   Подшив выносов крыши – Софит частично перфорированный
  •   Лестница – Деревянная с перилами и балясами, ступени открытые
  •   Устройство крыльца и террасы – Пол лиственница, потолок имитация бруса 16 мм, перила, лестница для подъёма с земли
  •   Плинтус пол потолок – деревянный 55 мм
  •   Обналичка дверных и оконных проёмов – 90 мм деревянная
  •   Гидроизоляция закладного венца дома – Гидроизол
  •   Обработка закладного венца дома, обвязочного венца, половых лаг – антисептик (огне-био)
  •   Уборка строительного мусора на участке (без вывоза с участка)
  •   Расходные материалы
  •   Доставка разгрузка и сборка комплекта дома на участке заказчика
  •   Фундамент ЖБ забивные сваи
  •   Сечение сваи – 150х150 мм
  •   Высота сваи – 3 м
  •   Минимальная высота цоколя – 500 мм
  •   Оголовок сваи – металлический оголовок 250х250мм
Как мы работаем
Звонок, почта или визит в офис, мы обсуждаем основные вопросы. Подписываем договор в офисе либо на участке заказчика
Вы делаете запрос
Вы делаете запрос
Звонок, почта или визит в офис, мы обсуждаем основные вопросы
01
Согласовываем детали
Согласовываем детали
Определяем окончательную планировку, стоимость и дату строительства объекта
02
Составляем договор
Составляем договор
Подписываем договор в офисе либо на участке заказчика по прибытию выездного специалиста
03
Завозим материал
Завозим материал
После доставки материала вы оплачиваете 65% от стоимости
04
Строительство объекта
Срок до 1 месяца. Оставшиеся 35% вы оплачиваете по окончанию работ и подписанию актов приемки
05
Похожие
проекты
Высококачественные деревянные дома и бани, созданные профессионалами с многолетним опытом и вниманием к деталям. Выберите один из наших популярных проектов и получите комфортное и экологичное жилье, идеально подходящее для вашего семейного отдыха В каталог
Напишите нам
У вас есть вопросы или вы хотите обсудить проект вашего будущего дома? Наши специалисты готовы помочь! Оставьте ваше сообщение, и мы свяжемся с вами в ближайшее время, чтобы предоставить консультацию

Рассчитайте свой
проект

ШАГ /

1.Какой этажности должен быть ваш будущий дом?

2.Выберите площадь вашего будущего дома

3.Выберите размер вашего будущего дома:

5.Выбор типа фундамента:

6.Укажите цель использования будущего дома:

8.Когда планируете начать строительство?

Тест пройден!
Для получения результатов оставьте ваш номер телефона.

Укажите ваше имя

Укажите ваш телефон

Спасибо за потраченное время!
Мы свяжемся с вами в ближайшее время.

0%

Cookie файлы

На нашем сайте используются cookie–файлы, в том числе сервисов веб–аналитики. Используя сайт, вы соглашаетесь на обработку персональных данных при помощи cookie–файлов. Подробнее об обработке персональных данных вы можете узнать в Политике конфиденциальности.