На сайте представлена информация о стоимости дома под усадку, который предлагается без отделочных работ. Если вам нужна точная стоимость дома под ключ, вам следует уточнить это у менеджера. Менеджер предоставит вам полную информацию о стоимости дома с учетом всех отделочных работ и других необходимых услуг.

Проект К-17

0
Размер
Размер:
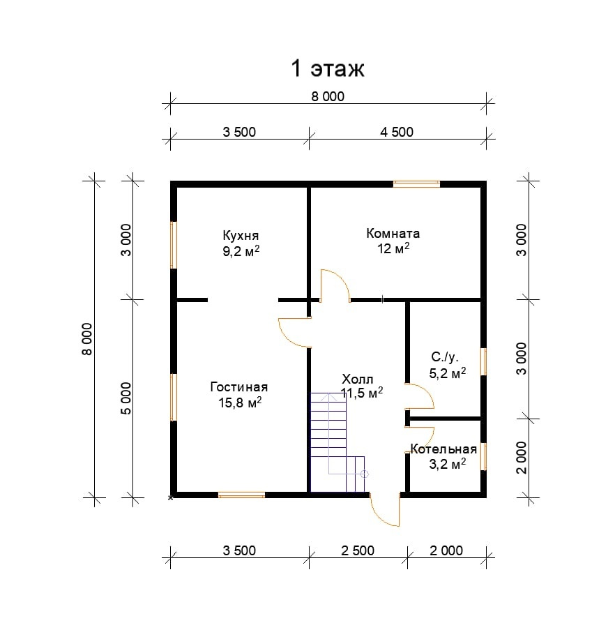
8х8
Площадь
Площадь:
128 м²
Этажность
Этажность:
2 этажа

Комплектация: р.


По запросу
Получить предложение со скидкой
Хотите внести изменения в проект?
Вы можете внести любые изменения в проект дома.
Сделаем расчет в течение одного дня.
Комплектация
Фундамент
Кровля
«Комфорт» Дачный вариант дома

Дом для комфортного проживания в период весна-осень

  • Каркас дома 150 мм из строганой доски камерной сушки, укреплённый ОСБ делают дом прочным и долговечным
  • Фундамент жб сваи
  • Кровельное покрытие металлочерепица толщиной 0.5 мм
  • Теплый контур дома 150 мм с ПВХ окнами с двойным стеклопакетом (3 стекла) позволяют создать комфортную температуру в период весна-осень
  •   Высота 1-го этажа — 2.6 м (± 0.05 м.)
  •   Высота 2-го этажа (при наличии) - 2.45 м (± 0.05 м.)
  •   Высота аттиковой стены (при наличии) – 1.2 м (± 0.05 м.)
  •   Закладной венец дома – Брус обрезной 140х140 мм (камерной сушки, строганный)
  •   Лаги пола и перекрытия - доска 45 х140 мм (строганая, камерной сушки) с шагом 580 мм
  •   Каркас дома - доска 45х145 мм (строганая, камерной сушки) с шагом 580 мм
  •   Каркас внутренних перегородок - доска 40х90мм, 45х145мм (строганая, камерной сушки) с шагом 580 мм
  •   Изоляция фасада – Мембрана гидро-ветрозащитная
  •   Внутренняя изоляция – Пароизоляционная плёнка типа B
  •   Наружная отделка – Виниловый сайдинг корабельная доска
  •   Внутренняя отделка (стены, потолок, перегородки) – Имитация бруса 16х135 мм сорт АБ (камерной сушки)
  •   Черновой пол 1-го этажа – Доска обрезная 22х100 мм + сетка от грызунов
  •   Чистовой пол – Доска пола шпунтованная 35 мм сорт АБ
  •   Выносы крыши – 500-600 мм (подшиваются частично перфорированным софитом)
  •   Стропильная система — Доска 45 х140 мм с шагом 580 мм
  •   Кровельная мембрана - гидро-ветрозащитная
  •   Вентиляционный зазор кровли – Брусок 40х50 мм
  •   Обрешетка крыши — Доска обрезная 22х150 мм
  •   Кровельное покрытие – Металлочерепица Grand Line Classic (сатин) 0.5 мм
  •   Утепление внутренних перегородок дома – Минераловатный утеплитель 100 мм
  •   Утепление фасадов дома – Минераловатный утеплитель 150 мм
  •   Утепление пол, потолок - Минераловатный утеплитель 150 мм
  •   Окна- Профиль ПВХ белый, двухкамерный стеклопакет, профиль 70мм, стеклопакет 40 мм (отлив, откос, подоконник, обналичка, москитная сетка)
  •   Лестница для подъёма с земли – одномаршевая из обрезной доски (временная)
  •   Опорные столбы террасы – 140х140 мм (строганный, камерной сушки)
  •   Ограждения террасы и крыльца – Резные балясы
  •   Пол террасы и крыльца (при наличии) – доска вельвет лиственница 28х140 мм
  •   Потолок террасы – Софит частично перфорированный
  •   Плинтус (пол, потолок) – деревянный камерной сушки 55мм
  •   Двери межкомнатные – Филенчатые деревянные, без фурнитуры
  •   Дверь входная - Металлическая с утеплителем и терморазрывом
  •   Гидроизоляция закладного венца дома – Гидроизол
  •   Обработка закладного венца дома, чернового пола – антисептик (огне-био)
  •   Уборка строительного мусора на участке (в общую кучу, без вывоза с участка)
  •   Расходные материалы
  •   Доставка, разгрузка и сборка комплекта дома на участке заказчика
  •   Фундамент ЖБ забивные сваи
  •   Сечение сваи – 150х150 мм
  •   Высота сваи – 3 м
  •   Минимальная высота цоколя – 500 мм
  •   Оголовок сваи – металлический оголовок 250х250мм
«Зима»

Тёплый дом для постоянного круглогодичного проживания

  • Каркас дома 200 мм из строганой доски камерной сушки, укреплённый ОСБ делают дом прочным и долговечным
  • Фундамент жб сваи
  • Кровельное покрытие металлочерепица толщиной 0.5 мм
  • Теплый контур дома 200 мм перехлёстного утепления, с ПВХ окнами с двойным стеклопакетом (3 стекла) позволяют создать комфортную температуру в доме в любое время года
  •   Высота 1-го этажа — 2.6 м (± 0.05 м.)
  •   Высота 2-го этажа (при наличии) - 2.45 м (± 0.05 м.)
  •   Высота аттиковой стены (при наличии) – 1.2 м (± 0.05 м.)
  •   Закладной венец дома – Брус обрезной 140х140 мм (камерной сушки, строганный)
  •   Лаги пола и перекрытия - доска 45 х190 мм (строганая, камерной сушки) с шагом 580 мм
  •   Каркас дома - доска 45х145+50 мм (строганая, камерной сушки) с шагом 580 мм
  •   Каркас внутренних перегородок - доска 40х90мм, 45х145мм (строганая, камерной сушки) с шагом 580 мм
  •   Изоляция фасада – Мембрана гидро-ветрозащитная
  •   Внутренняя изоляция – Пароизоляционная плёнка типа B
  •   Наружная отделка – Виниловый сайдинг корабельная доска
  •   Внутренняя отделка (стены, потолок, перегородки) – Имитация бруса 16х135 мм сорт АБ (камерной сушки)
  •   Черновой пол 1-го этажа – Доска обрезная 22х100 мм + сетка от грызунов
  •   Чистовой пол – Доска пола шпунтованная 35 мм сорт АБ
  •   Выносы крыши – 500-600 мм (подшиваются частично перфорированным софитом)
  •   Стропильная система — Доска 45 х190 мм с шагом 580 мм
  •   Кровельная мембрана - гидро-ветрозащитная
  •   Вентиляционный зазор кровли – Брусок 40х50 мм
  •   Обрешетка крыши — Доска обрезная 22х150 мм
  •   Кровельное покрытие – Металлочерепица Grand Line Classic (сатин) 0.5 мм
  •   Утепление внутренних перегородок дома – Минераловатный утеплитель 100 мм
  •   Утепление фасадов дома – Минераловатный утеплитель 150+50 мм
  •   Утепление пол, потолок - Минераловатный утеплитель 200 мм
  •   Окна- Профиль ПВХ белый, двухкамерный стеклопакет, профиль 70мм, стеклопакет 40 мм (отлив, откос, подоконник, обналичка, москитная сетка)
  •   Лестница для подъёма с земли – одномаршевая из обрезной доски (временная)
  •   Опорные столбы террасы – 140х140 мм (строганный, камерной сушки)
  •   Ограждения террасы и крыльца – Резные балясы
  •   Пол террасы и крыльца (при наличии) – доска вельвет лиственница 28х140 мм
  •   Потолок террасы – Софит частично перфорированный
  •   Плинтус (пол, потолок) – деревянный камерной сушки 55мм
  •   Двери межкомнатные – Филенчатые деревянные, без фурнитуры
  •   Дверь входная - Металлическая с утеплителем и терморазрывом
  •   Гидроизоляция закладного венца дома – Гидроизол
  •   Обработка закладного венца дома, чернового пола – антисептик (огне-био)
  •   Уборка строительного мусора на участке (в общую кучу, без вывоза с участка)
  •   Расходные материалы
  •   Доставка, разгрузка и сборка комплекта дома на участке заказчика
  •   Фундамент ЖБ забивные сваи
  •   Сечение сваи – 150х150 мм
  •   Высота сваи – 3 м
  •   Минимальная высота цоколя – 500 мм
  •   Оголовок сваи – металлический оголовок 250х250мм
Как мы работаем
Звонок, почта или визит в офис, мы обсуждаем основные вопросы. Подписываем договор в офисе либо на участке заказчика
Вы делаете запрос
Вы делаете запрос
Звонок, почта или визит в офис, мы обсуждаем основные вопросы
01
Согласовываем детали
Согласовываем детали
Определяем окончательную планировку, стоимость и дату строительства объекта
02
Составляем договор
Составляем договор
Подписываем договор в офисе либо на участке заказчика по прибытию выездного специалиста
03
Завозим материал
Завозим материал
После доставки материала вы оплачиваете 65% от стоимости
04
Строительство объекта
Срок до 1 месяца. Оставшиеся 35% вы оплачиваете по окончанию работ и подписанию актов приемки
05
Похожие
проекты
Высококачественные деревянные дома и бани, созданные профессионалами с многолетним опытом и вниманием к деталям. Выберите один из наших популярных проектов и получите комфортное и экологичное жилье, идеально подходящее для вашего семейного отдыха В каталог
Напишите нам
У вас есть вопросы или вы хотите обсудить проект вашего будущего дома? Наши специалисты готовы помочь! Оставьте ваше сообщение, и мы свяжемся с вами в ближайшее время, чтобы предоставить консультацию

Рассчитайте свой
проект

ШАГ /

1.Какой этажности должен быть ваш будущий дом?

2.Выберите площадь вашего будущего дома

3.Выберите размер вашего будущего дома:

5.Выбор типа фундамента:

6.Укажите цель использования будущего дома:

8.Когда планируете начать строительство?

Тест пройден!
Для получения результатов оставьте ваш номер телефона.

Укажите ваше имя

Укажите ваш телефон

Спасибо за потраченное время!
Мы свяжемся с вами в ближайшее время.

0%

Cookie файлы

На нашем сайте используются cookie–файлы, в том числе сервисов веб–аналитики. Используя сайт, вы соглашаетесь на обработку персональных данных при помощи cookie–файлов. Подробнее об обработке персональных данных вы можете узнать в Политике конфиденциальности.