На сайте представлена информация о стоимости дома под усадку, который предлагается без отделочных работ. Если вам нужна точная стоимость дома под ключ, вам следует уточнить это у менеджера. Менеджер предоставит вам полную информацию о стоимости дома с учетом всех отделочных работ и других необходимых услуг.

Проект ДБ-175

0
Размер
Размер:
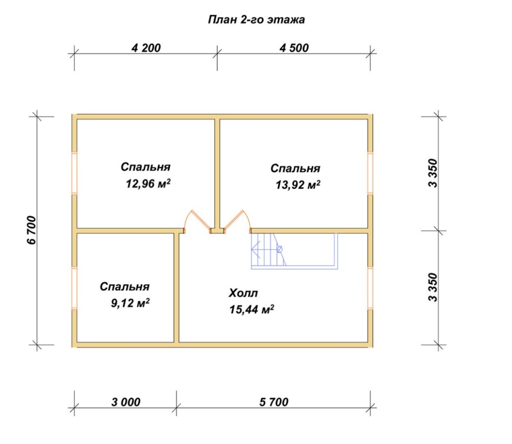
8х9
Площадь
Площадь:
145 м²
Этажность
Этажность:
Мансарда
Указана стоимость на дом под усадку без отделочных работ, стоимость дома под ключ уточняйте у менеджера.

Тип бруса: р.


Выберите тип фундамента: + 0 р.


Выберите тип кровли: + 0 р.

По запросу
Получить предложение со скидкой
Хотите внести изменения в проект?
Вы можете внести любые изменения в проект дома.
Сделаем расчет в течение одного дня.
Комплектация
Фундамент
Кровля
Чистовая отделка
  • Высота 1-го этажа 2,7 м. в чистоте (от балки до балки)
  • Высота 2-го этажа (мансардный) 2,5 м. в чистоте (от балки до потолочного ригеля)
  • Высота подъёма крыши (высота фронтона) - 3.5 метра
  • Выносы крыши (карниз,подлёт) - 500мм
  • Наружные стены - Брус 150x150 мм или 150х200 мм в зависимости от выбранного сечения бруса
  • Несущие перегородки 1-го этажа - Брус 150х150мм 
  • Не несущие перегородки 1-го этажа — Брус 100х150 мм
  • Перегородки 2-го этажа - Каркасные, монтируются после усадки дома и в стоимость не входят
  • Фронтоны — Каркасные из бруса 50х150 мм обшиваются с наружней стороны обрезной доской при строительстве дома из обрезного бруса, имитацией бруса 16х145мм при строительсве дома из профилированного бруса
  • Балки пола и потолка брус 100х150 мм на ребро с шагом 580мм
  • Потолочные перекрытия мансардного этажа брус 50х150 мм на ребро с шагом 580 мм
  • Стропильная система брус 50х150 мм на ребро с шагом 580 мм
  • Подкровельная мембрана - Для утепленных скатных крыш гидро-ветрозащитная паропроницаемая мембрана
  • Вентиляционный зазор кровли - Брусок 50х50мм
  • Обрешетка крыши доска обрезная 22х150 мм с шагом 200 мм
  • Кровельное покрытие - Металлочерепица, ондулин, мягкая черепица (цвета в ассортименте)
  • Временная кровля - Рубероид 
  • Гидроизоляция укладывается поверх фундамента (Рубероид в 2 слоя)
  • Межвенцовый утеплитель - Льноватин толщиной 4-6 мм (ширина согласно выбранного сечения бруса)
  • Крепление венцов сруба - Нагелями берёзовыми в шахматном порядке через расстояние 1.5 м
  • Сборка углов - Тёплый угол "ласточкин хвост" 
  • Торцевые соединения бруса по длине - "Ласточкин хвост" 
  • Антисептирование - Обработка антисептиком (огнебто защита) нижнего венца и балок 1-го этажа
  • Опорные столбы террас, крылец - Брус строганый 140х140мм с компенсаторами усадки 
  • Уборка строительного мусора (без вывоза с участка) Доставка на участок заказчика
  • Погрузочные и разгрузочные работы При невозможности подъезда к пятну застройки и необходимости использования (аренды) дополнительной спец.техники (кран, манипулятор, трактор) затраты на аренду ложатся на сторону заказчика
  • Сборка комплекта дома на участке заказчика
  • Расходные материалы
Как мы работаем
Звонок, почта или визит в офис, мы обсуждаем основные вопросы. Подписываем договор в офисе либо на участке заказчика
Вы делаете запрос
Вы делаете запрос
Звонок, почта или визит в офис, мы обсуждаем основные вопросы
01
Согласовываем детали
Согласовываем детали
Определяем окончательную планировку, стоимость и дату строительства объекта
02
Составляем договор
Составляем договор
Подписываем договор в офисе либо на участке заказчика по прибытию выездного специалиста
03
Завозим материал
Завозим материал
После доставки материала вы оплачиваете 65% от стоимости
04
Строительство объекта
Срок до 1 месяца. Оставшиеся 35% вы оплачиваете по окончанию работ и подписанию актов приемки
05
Похожие
проекты
Высококачественные деревянные дома и бани, созданные профессионалами с многолетним опытом и вниманием к деталям. Выберите один из наших популярных проектов и получите комфортное и экологичное жилье, идеально подходящее для вашего семейного отдыха В каталог
Напишите нам
У вас есть вопросы или вы хотите обсудить проект вашего будущего дома? Наши специалисты готовы помочь! Оставьте ваше сообщение, и мы свяжемся с вами в ближайшее время, чтобы предоставить консультацию

Рассчитайте свой
проект

ШАГ /

1.Какой этажности должен быть ваш будущий дом?

2.Выберите площадь вашего будущего дома

3.Выберите размер вашего будущего дома:

5.Выбор типа фундамента:

6.Укажите цель использования будущего дома:

8.Когда планируете начать строительство?

Тест пройден!
Для получения результатов оставьте ваш номер телефона.

Укажите ваше имя

Укажите ваш телефон

Спасибо за потраченное время!
Мы свяжемся с вами в ближайшее время.

0%

Cookie файлы

На нашем сайте используются cookie–файлы, в том числе сервисов веб–аналитики. Используя сайт, вы соглашаетесь на обработку персональных данных при помощи cookie–файлов. Подробнее об обработке персональных данных вы можете узнать в Политике конфиденциальности.